PRÓISEAS DHÉANAMH GLÚIN
GNÉITHE
Ardú agus titim teochta tapa
Éifeachtúlacht aistrithe teasa ard, éifeachtacht táirgthe méadaithe
Meascadh aonfhoirmeach, éascaíocht oibríochta a éascú
Ábhar neamh-bata, rud a fhágann go bhfuil sé éasca a ghlanadh
Coigilt fuinnimh níos mó ná 40% i gcomparáid le himoibreoirí traidisiúnta le réimsí aistrithe teasa comhchosúla
MODHANNA TÉAMH
Gaile
Ola seoltaí teasa
CUR SÍOS AR NA PRÍOMHCHOMHPHÁIRTÍ
Imoibreoir
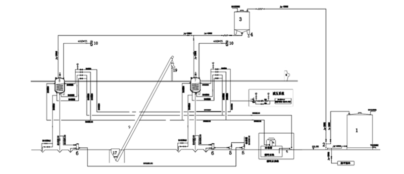
Feidhmíonn an t-imoibreoir mar shoitheach imoibrithe cuimsitheach atá deartha de réir coinníollacha imoibrithe. Éascaíonn sé beathú, imoibriú, agus urscaoileadh le uathoibriú ard. Déantar príomhpharaiméadair ar nós teocht, brú, rialú meicniúil (sruadh, séideadh aeir, etc.), agus imoibreán/tiúchan táirge a rialú go docht le linn an phróisis imoibrithe. Cuimsíonn a struchtúr comhlacht citeal, aonad tiomána, aonad stirring, aonad téimh, aonad fuaraithe, agus aonad séalaithe.
Scálaí Leictreonacha
Úsáidtear scálaí leictreonacha go coitianta le haghaidh méadrú amhábhar rubair, ag laghdú earráidí de bharr an duine agus ag cinntiú cóimheasa amhábhar cruinn. Tomhaiseann siad formaildéad, úiré, feanól, etc., go cruinn, ag íoslaghdú earráidí oibriúcháin agus ag cinntiú cobhsaíocht táirgí agus táirgeachta.
Comhdhlúthadán
Comhdhlúthaíonn an comhdhlúthadán gaile galaithe agus ábhar imoibrithe so-ghalaithe sa réiteach imoibrithe, rud a ligeann dóibh filleadh ar an gciteal imoibrithe chun cóimheasa amhábhar comhsheasmhach a choinneáil, toradh roisín a mhéadú, cáilíocht roisín a chinntiú, agus truailliú comhshaoil a laghdú. Úsáidtear comhdhlúthadáin tubular, lena mbeagmhéid, limistéar aistrithe teasa mór, agus éascaíocht dí-áitithe, go coitianta. Le haghaidh táirgeadh gliú díhiodráitithe, ba chóir scriosán ceo a shuiteáil ar an bpíblíne ardú gaile chun greamaitheacht gliú a chosc, rud a d'fhéadfadh éifeachtacht agus táirgeadh malartaithe teasa a laghdú.
SAMPLA PLANDAÍ CUSTAIMÉARA
CONAS IS FÉIDIR LIOM TACÚ LE DO GHNÓ
Línte tuile iomlán
Aonaid singil (unwinder, stáisiún tuilte, triomadóir, meaisín brataithe, with, ailíniú gréasáin, gearrthóir, iompair, tábla ardaithe)
Trealamh a dhéanamh roisín agus córais mheascadh roisín
Córais aisghabhála teasa agus cóireáil aeir
Páirteanna breise
Trealamh saotharlainne (meaisín preas tástála, feiste tuile láimhe, feiste tástála, etc.)
Aistriú teicneolaíochta (foirmlithe roisín, teicneolaíocht tuile, pleanáil plandaí)





